邯郸,中国成语典故之都,特有的前卫、舒适都市节奏以及丰富的文化底蕴,让人们对生活有了更高的追求。
欧神诺瓷砖具备前瞻设计理念,以追求精致质感的生活体验,通过造型设计重新定义商业空间,删繁就简,让顾客进店能选购产品的同时,也能感受到城市特有的艺术氛围。
本期,将为您展现邯郸欧神诺品牌专卖店的独特魅力,一同领略时代前沿的设计理念,探寻现代格调的空间逻辑与舒适体验。
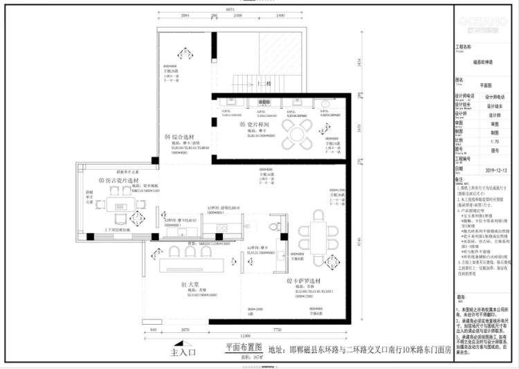
项目名称丨欧神诺邯郸青烨磁县店
项目地点丨河北邯郸磁县东环路与二环路交叉口南行10米东门面房
项目面积丨167m²
以现代轻奢为主题,空间整体布局精致有序,源于对人性化和舒适度的极度考究,对展示空间体验进行无限延展,推出「产品+空间+人」的个性化整体解决方案。展示出欧神诺作为陶瓷行业头部品牌的高端旗舰店形象,获邯郸无数业主好评。
从前台展示位开启以光为引,灯光的映射下增加了空间层次感,带给人静谧与优雅的轻奢体验感。2400*1200mm大规格卡莫大板·意大利灰背景墙,突破单片纹理边界,更完美地还原大自然奇景,使得空间整体效果更统一、更高级。
选材区产品品类丰富,规格齐全,涵盖当下欧神诺瓷砖的热门产品,卡萨罗、苏格岩板石、欧神诺抗菌砖等产品,为当地客户提供外墙、客厅、厨卫等一系列空间装修所需产品。
同时会通过云交互平台把瓷砖及配件,根据客户喜好自行定制,让客户身临其境体验方案呈现的空间效果。
整个品牌馆不仅在产品展示上独具美学,连洽谈区也将空间层次感展现得淋漓尽致。轻奢大理石洽谈桌,仿皮纹座椅的奢华质感,为每一位追求理想生活的用户打造舒适雅致的体验实景。
复古拼花、衬线通过与瓷砖的搭配,勾勒出设计图案的极致感,摒弃冗杂的装饰品,精致软装、层次叠加、开放布局,样板间把真实的家居场景,复刻在每一处展厅的角落。
每个样板间都极具现代美学的精神,通过不同饱和度的色彩搭配与点缀,定义出现代艺术风尚的美感。雅致而轻奢的设计,处处彰显着别具一格的高级美学。
作为2000万家庭选择的家居品牌,欧神诺瓷砖尊重用户体验感,以人性与美学的共同体,连接理想人居与美好当下,赋予生活崭新的意义。未来,欧神诺瓷砖将与所有热爱生活的人群,共同见证艺术回归生活。
责任编辑:刘主编
返回顶部